安博电竞
首页
(current)
关于安博电竞
安博电竞简介
集团概况
生长历程
主要客户
企业声誉
产品资讯
汽车马达
汽车空调管路
研发实力
研发手艺
实验室实验能力
产品专利·著作权
人力资源
福利制度
加入安博电竞
公司动态
公司新闻
公司通告
社会责任
联系安博电竞
联系方法
信息反响
繁
EN
繁体
English
首页
关于安博电竞
产品资讯
研发实力
人力资源
公司动态
联系安博电竞
新闻资讯
公司新闻
公司通告
社会责任
新闻资讯
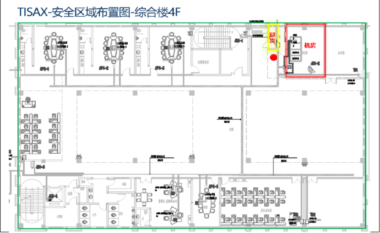
清静区域安排图
2023-02-18
治理部
2023年2月18日
返回
最新文章推荐
2025资安年度教育训练妄想表
2024信息清静政策愿景与目的
2024资安年度教育训练妄想表
信息清静事务转达责任
清静区域安排图
【网站地图】